ENTWERFEN
ZEICHNEN
KONTAKT
ENTWERFEN
ZEICHNEN
KONTAKT
Tjard Reemko Löning
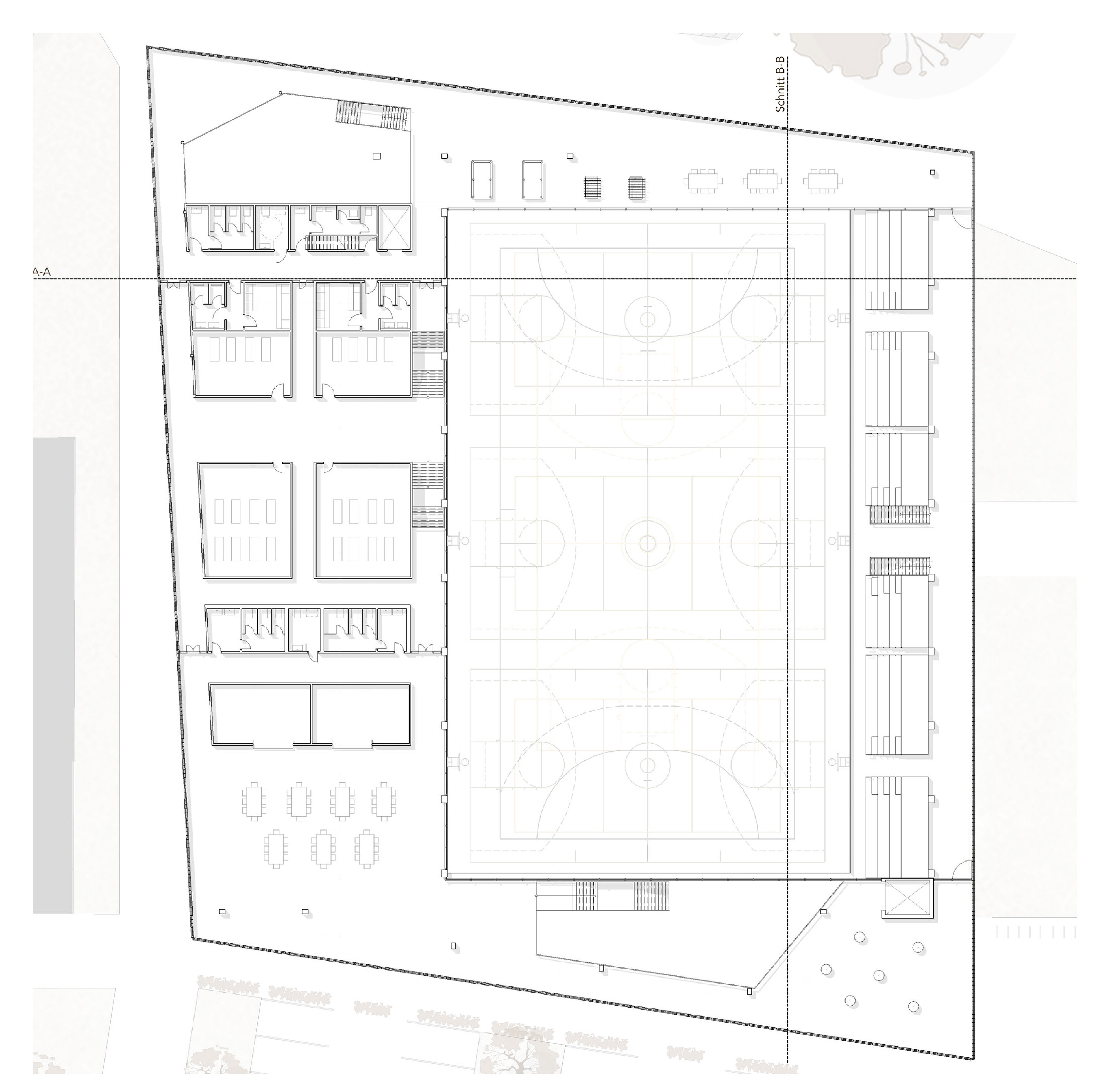
Sporthalle Eversten
You may also like
Kantor Hotel
2025
STGRF Berlin
2025
Portfolio
2026
STGRF HAUS AM HANG
2024
Schicht Quartier
2024
Jade Guesthouse
2023
Künstlerviertel
2023
STGRF Landschaftsfenster
2024
BACHELORTHESIS
2025
STGRF München
2025
↑
Back to Top