ENTWERFEN
ZEICHNEN
KONTAKT
ENTWERFEN
ZEICHNEN
KONTAKT
Tjard Reemko Löning
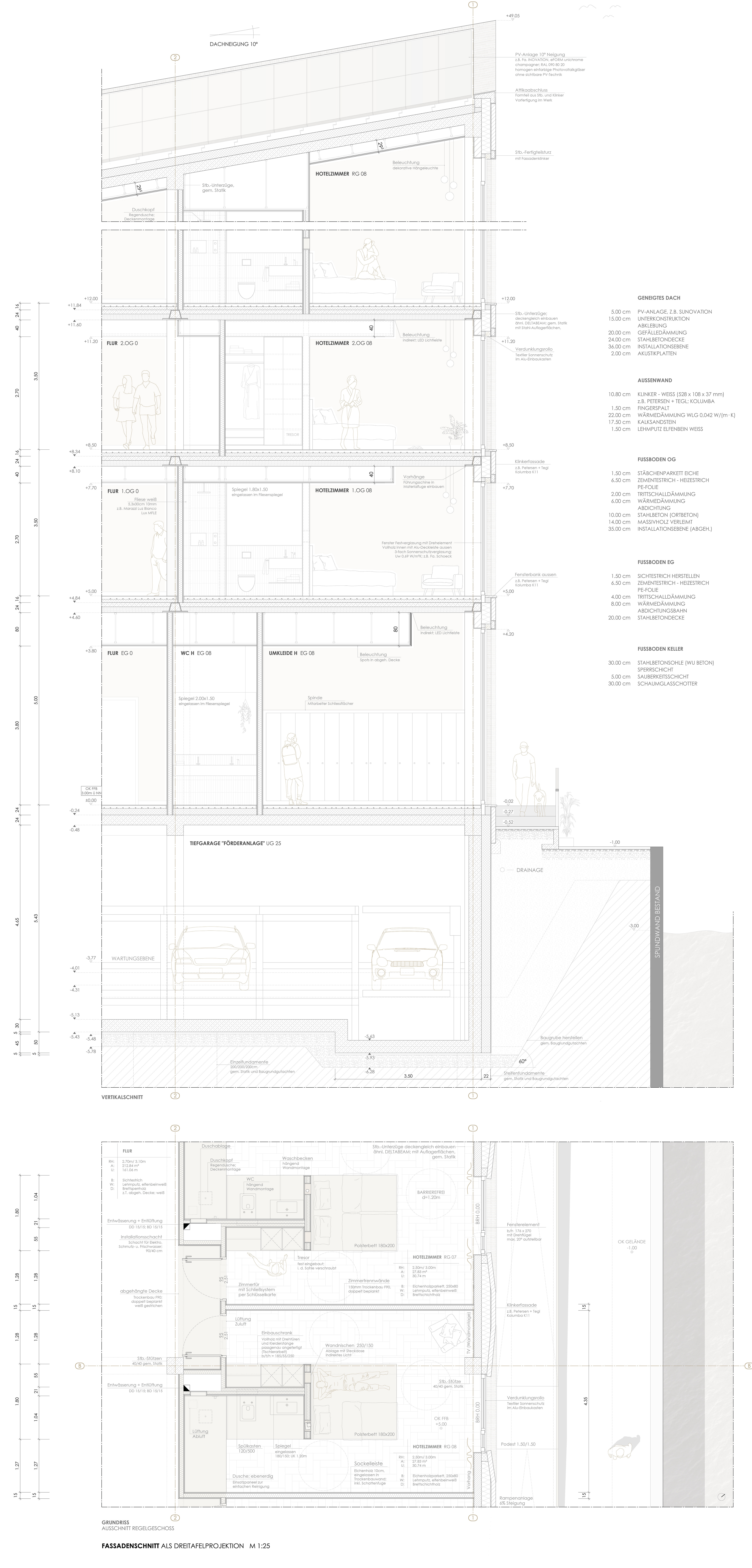
Kantor Hotel
You may also like
Künstlerviertel
2023
Portfolio
2026
Sporthalle Eversten
2024
STGRF Landschaftsfenster
2024
Schicht Quartier
2024
STGRF Berlin
2025
STGRF München
2025
STGRF Flachau
2026
STGRF HAUS AM HANG
2024
Jade Guesthouse
2023
↑
Back to Top